€
EUR
£
GBP
$
USD
Who are we
Properties
Developments
Want to sell
Contacts
News
Recruitment
Mais
Who are we
Properties
Developments
Want to sell
Contacts
News
Recruitment
0
0
€
EUR
£
GBP
$
USD
Fantastic 4 bedroom duplex with luxury finishes, in Montijo
Setúbal, Montijo
Back
\
Fantastic 4 bedroom duplex with luxury finishes, in Montijo - Setúbal, Montijo
Share Property
Facebook
X
Pinterest
WhatsApp
Copiar link
Link copiado
Print sheet
Send property to a friend
Insert a name
Insert an email
Enter a valid email address
Insert a name
Insert an email
Enter a valid email address
I have read and agree to the terms and conditions set forth.
Know more »
To finish this operation you should read and agree with our conditions.
Required fields *
Send
Photos
Videos
Plans
Seguir imóvel
Seguir imóvel
Receba um alerta quando existir uma Baixa de Preço
Name
Insira o seu Nome
E-mail
Enter your email
Enter a valid email address
Li e aceito a
Privacy Policy
To finish this operation you should read and agree with our conditions.
Enter the code from the image
Code
Send
Fantastic 4 bedroom duplex with luxury finishes, in Montijo
890 000 €
Ref:
TRI-315-24-OE (3)
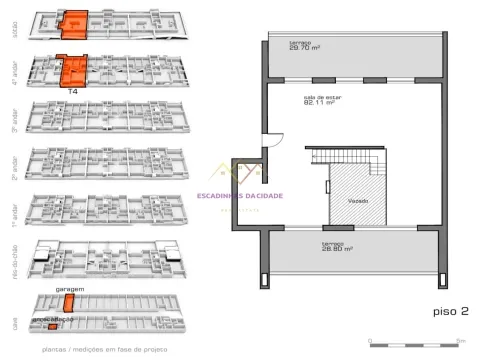
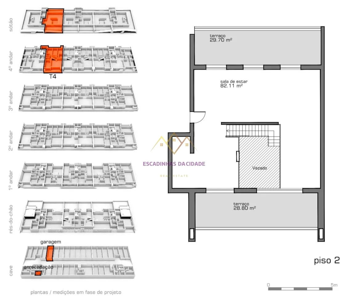
4
4
1
267 m²
346 m²
267 m²
Living in Montijo is choosing a life with more space, more tranquility and a privileged connection to Lisbon, without giving up comfort and modernity. Imagine a sophisticated refuge, next to the Tagus River, where the pace is lighter, but everything is within your reach — this is where your new way of living begins.
In the heart of this city in full appreciation, this exclusive 4 bedroom Duplex apartment appears, designed for those looking for distinction and superior quality. With a generous floor area of 267 m², it stands out for its contemporary lines, large areas and extraordinary natural luminosity — so characteristic of the Montijo region. The intelligent distribution includes two interconnected rooms — one in open space on the main floor and the other on the upper floor — creating versatile and sophisticated environments, ideal for everyday life and convivial moments.
The kitchen, fully equipped with Siemens appliances and excellent finishes, integrates harmoniously with the living room in a large space with double height ceilings, where natural light is the protagonist. Panoramic windows open onto a balcony with barbecue, perfect for enjoying the mild climate of the South Bank and unique moments with family and friends.
The bedrooms offer comfort and functionality, with built-in wardrobes and an elegant suite. With three bathrooms and a private box for two cars, everything was designed to ensure convenience and exclusivity.
The construction quality and premium equipment elevate this property even more:
Modern window frames with high thermal and acoustic performance
Electric thermal blinds
Distinctive insulation for maximum comfort
Liebherr wine cellar for wine lovers
LED lighting and sophisticated false ceilings
Central vacuum
Built-in Mitsubishi air conditioner
Warmup Electric Underfloor Heating
Solar panels and efficient heating system
All this with Energy Class A, ensuring efficiency and sustainability.
Located in a quiet area of Montijo, with quick access to the Vasco da Gama Bridge and just minutes from Lisbon, close to shops, schools, restaurants and with easy connection to the beaches of the region, this property represents a unique opportunity.
Schedule your visit now and discover an apartment where comfort, elegance and location come together to create a truly exclusive lifestyle.
Net Area: 267 m2
Unit value: 3.333/m2
CE: A
Emir Sabalo
+351916639047
emir.sabalo@escadinhasdacidade.pt
AMI 23557
Escadinhas da Cidade – Mediação Imobiliária, Lda
Visit our page and see this and other properties.
www.escadinhasdacidade.pt
Interested in this property?
Date
Hora
Name
Insert a name
E-mail
Insert an email
Enter a valid email address
Contact
Enter your phone contact
Message
I request more information, without any commitment, about the property TRI-315-24-OE (3)
I have read and agree to the terms and conditions set forth.
Privacy Policy
To finish this operation you should read and agree with our conditions.
Code
Enter the code shown in the image
Send
Property Type
Flat
Typology
4 Bedrooms
Objective
Sell
Condition
New
Price
890 000 €
Year of Construction
2023
Country
Portugal
District
Setúbal
County
Montijo
Parish
Montijo e Afonsoeiro
Zone
Montijo
Home Credit and IMT Simulator
Credit Simulator
IMT Simulator
Property value*
Loan Amount*
Your age*
Loan term *
Monthly Installment
0.00
€
The installment value presented does not include Life Insurance and Home Insurance.
Index
0.000
%
TAEG
0.000
%
Spread
0.000
%
Term
0
anos
APR
0.000
%
Simulate
The information generated in this simulator is intended to provide information of an exclusively indicative nature to the user, not conferring any binding value or data collection for commercial purposes.
Property location*
Selecione
Mainland Portugal
Autonomous Regions
Purpose*
Selecione
Own Permanent Housing
Secondary Housing or Rental
Rural Properties
Others
Property value*
Complementary values*
IMT
0.00
€
Stamp Duty (0.8%)
0.00
€
Complementary values
0.00
€
Total to pay
0.00
€
Mais informações
Simulate
The information generated in this simulator is intended to provide information of an exclusively indicative nature to the user, not conferring any binding value or data collection for commercial purposes.
Dados de Intermediação de Crédito - (Intermediário de Crédito nº )
Saiba mais sobre a sua simulação
Name
Campo obrigatório
E-mail
Campo obrigatório
Insira um e-mail válido
Contact
Campo obrigatório
Comments
Isto é apenas uma simulação. Esta simulação de crédito não tem fins lucrativos.
Li e aceito a
Privacy Policy
To finish this operation you should read and agree with our conditions.
Code
Enter the code shown in the image
Enviar
General Features
General
Rooms
Rooms
Area
Floor
Walls
Ceilings
Comments
Surroundings
Facilities
Domotic System (Home automation)
Renewable Energy
See too
Setúbal, Montijo
780 000 €
T3+2 New with Box Garage and Large Terraces— Montijo
780 000 €
T3+2 New with Box Garage and Large Terraces— Montijo
Setúbal, Montijo
4
4
1
310 m²
A. Bruta
307 m²
A. Bruta Privada
205 m²
A. Útil
Contactar
Setúbal, Montijo
465 000 €
Spectacular 3 bedroom apartment with parking to debut in Montijo
465 000 €
Spectacular 3 bedroom apartment with parking to debut in Montijo
Setúbal, Montijo
3
2
1
136 m²
A. Bruta
136 m²
A. Bruta Privada
124 m²
A. Útil
Contactar
Setúbal, Montijo
445 000 €
Spectacular 3 bedroom apartment with parking to debut in Montijo
445 000 €
Spectacular 3 bedroom apartment with parking to debut in Montijo
Setúbal, Montijo
3
2
1
136 m²
A. Bruta
136 m²
A. Bruta Privada
124 m²
A. Útil
Contactar
More properties +
Estamos disponíveis para o ajudar
Pretendo ser contactado
Date
Hora
Name
Insert a name
E-mail
Insert an email
Enter a valid email address
Contact
Insira o seu Contacto
Message
Li e aceito a
Privacy Policy
To finish this operation you should read and agree with our conditions.
Code
Enter the code shown in the image
Send
O que é a pesquisa responsável
Esta pesquisa permite obter resultados mais ajustados à sua disponibilidade financeira.