€
EUR
£
GBP
$
USD
Who are we
Properties
Developments
Want to sell
Contacts
News
Recruitment
Mais
Who are we
Properties
Developments
Want to sell
Contacts
News
Recruitment
0
0
€
EUR
£
GBP
$
USD
S. Vicente, Project approved and Licenses paid for construction of residential building
Lisboa, Lisboa
Back
\
S. Vicente, Project approved and Licenses paid for construction of residential building - Lisboa, Lisboa
Share Property
Facebook
X
Pinterest
WhatsApp
Copiar link
Link copiado
Print sheet
Send property to a friend
Insert a name
Insert an email
Enter a valid email address
Insert a name
Insert an email
Enter a valid email address
I have read and agree to the terms and conditions set forth.
Know more »
To finish this operation you should read and agree with our conditions.
Required fields *
Send
Photos
Videos
Plans
Seguir imóvel
Seguir imóvel
Receba um alerta quando existir uma Baixa de Preço
Name
Insira o seu Nome
E-mail
Enter your email
Enter a valid email address
Li e aceito a
Privacy Policy
To finish this operation you should read and agree with our conditions.
Enter the code from the image
Code
Send
S. Vicente, Project approved and Licenses paid for construction of residential building
1 050 000 €
Ref:
TRI-82-24-AS (3)
690 m²
690 m²
241 m²
S. Vicente (next to the Feira da Ladra).
Land with approved Project and Fees paid, ready to start construction immediately.
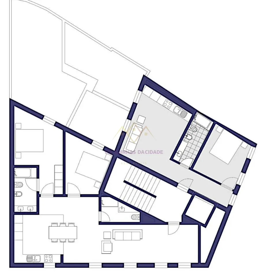
The project is approved for 8 apartments, but there is the possibility of building another T0 apartment on Floor 0 with 52 m2 + 15 m2 of patio (it is feasible to get approval), as well as an optimization of the unused area on the top floor.
Total Construction Area: 690 m2 (without use of a hidden area on the top floor), which allows 9 apartments (which includes the above), with the following typologies:
Floor 0:
Apartment T0 with garden - 30.40 m2 + 27.90 m2 (patio)
Apartment T0 with garden - 31.90 m2 + 10.70 m2 (patio)
Apartment T0 with garden - 51.67 m2 + 15.00 m2 (patio)
Floor 1:
Apartment 2 Bedrooms - 98.97 m2
1 Bedroom Apartment - 51.67 m2
Floor 2:
Apartment 2 Bedrooms - 98.97 m2
1 Bedroom Apartment - 51.67 m2
Floor 3:
1 bedroom apartment with garden - 53.70 m2 + 11.67m2 (patio)
Apartment T0 - 36,00 m2
Possibility to make Edifício de Apartamentos turísticos.
Privileged location, in the historic and tourist area of Lisbon.
Net Area: 690m2
CE: E
Unit Value: €1,521/m2
The name of S. Vicente de Fora originated from the Church of São Vicente de Fora. In addition to this church, there is the church of Santa Engrácia, which in 1910 was transformed into the National Pantheon.
Schedule your visit now and discover an excellent investment!
Consultant
:
Alexandra Silva
+351937624073
alexandra.silva@escadinhasdacidade.pt
Escadinhas da Cidade – SMI, Lda
AMI23557
Visit this and other properties in www.escadinhasdacidade.pt
Interested in this property?
Date
Hora
Name
Insert a name
E-mail
Insert an email
Enter a valid email address
Contact
Enter your phone contact
Message
I request more information, without any commitment, about the property TRI-82-24-AS (3)
I have read and agree to the terms and conditions set forth.
Privacy Policy
To finish this operation you should read and agree with our conditions.
Code
Enter the code shown in the image
Send
Property Type
Building
Typology
0 Bedrooms
Objective
Sell
Condition
Projected
Price
1 050 000 €
Year of Construction
N/A
Country
Portugal
District
Lisboa
County
Lisboa
Parish
São Vicente
Zone
N/A
Credit Simulator
IMT Simulator
Property value*
Loan Amount*
Your age*
Loan term *
Monthly Installment
0.00
€
The installment value presented does not include Life Insurance and Home Insurance.
Index
0.000
%
TAEG
0.000
%
Spread
0.000
%
Term
0
anos
APR
0.000
%
Simulate
The information generated in this simulator is intended to provide information of an exclusively indicative nature to the user, not conferring any binding value or data collection for commercial purposes.
Property location*
Selecione
Mainland Portugal
Autonomous Regions
Purpose*
Selecione
Own Permanent Housing
Secondary Housing or Rental
Rural Properties
Others
Property value*
Complementary values*
IMT
0.00
€
Stamp Duty (0.8%)
0.00
€
Complementary values
0.00
€
Total to pay
0.00
€
Mais informações
Simulate
The information generated in this simulator is intended to provide information of an exclusively indicative nature to the user, not conferring any binding value or data collection for commercial purposes.
Dados de Intermediação de Crédito - (Intermediário de Crédito nº )
Saiba mais sobre a sua simulação
Name
Campo obrigatório
E-mail
Campo obrigatório
Insira um e-mail válido
Contact
Campo obrigatório
Comments
Isto é apenas uma simulação. Esta simulação de crédito não tem fins lucrativos.
Li e aceito a
Privacy Policy
To finish this operation you should read and agree with our conditions.
Code
Enter the code shown in the image
Enviar
General Features
General
Rooms
Rooms
Area
Floor
Walls
Ceilings
Comments
Surroundings
Facilities
Domotic System (Home automation)
Renewable Energy
See too
Lisboa, Lisboa
995 000 €
Project for a 4 bedroom single-family house 100 meters from Largo do Rato.
995 000 €
Project for a 4 bedroom single-family house 100 meters from Largo do Rato.
Lisboa, Lisboa
405 m²
A. Bruta
405 m²
A. Útil
130 m²
A. Terreno
Contactar
More properties +
Estamos disponíveis para o ajudar
Pretendo ser contactado
Date
Hora
Name
Insert a name
E-mail
Insert an email
Enter a valid email address
Contact
Insira o seu Contacto
Message
Li e aceito a
Privacy Policy
To finish this operation you should read and agree with our conditions.
Code
Enter the code shown in the image
Send
O que é a pesquisa responsável
Esta pesquisa permite obter resultados mais ajustados à sua disponibilidade financeira.